Three-story European-style light steel villa design in Hangzhou
Drawing No. 002013
Building Area: 423.00 m²
Width: 12.20 m
Number of Bays: 3
Number of Floors: 3
Structure: Brick-concrete structure
Construction Cost: 690,000 RMB
Land Area: 140.00 m²
Depth: 11.50 m
Number of Bedrooms: 5
Architectural Style: European
City: Hangzhou, Zhejiang Province
Features: Terrace, pitched roof, courtyard, north-facing staircase, 3 bays, 5 bedrooms
The villa features a simple European style. The yard includes a parking lot and a pavilion where a grape trellis can be built. Imagine enjoying grapes under the trellis in the summer – and perhaps even hearing the whispers of the Cowherd and the Weaver Girl on Qixi Festival (Chinese Valentine's Day)!

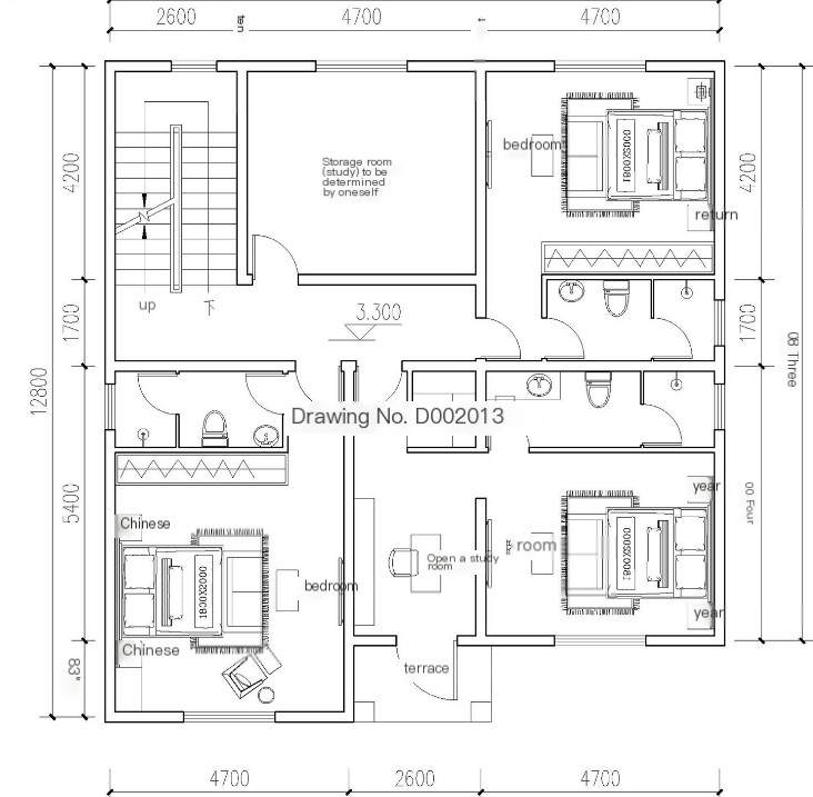
Floor Plan
The first floor is primarily for reception, featuring a living room, dining rooms of varying sizes, and a game room, creating a welcoming atmosphere. Imagine spending a relaxing afternoon playing mahjong or chatting – pure bliss!
The second floor has three bedrooms, each with its own ensuite bathroom for comfortable living, and a study for enriching one's knowledge and enjoying good books.
Renderings
The main building is viewed along the country road, complemented by vegetation and landscaping. A tea chair at the entrance provides a place for the owner to relax, unwind, or play chess.

Elevation
The main entrance features rich details in its moldings and eaves, drawing attention to the interior. The wooden door and the partially perforated dark gray mesh complement each other perfectly.

Windows are located on the east and north sides of the villa for ventilation and moisture control, preventing dampness from damaging the walls and affecting the interior aesthetics.
A sunroom is located on the west side of the third floor, featuring a unique design using a steel and glass combination that is both transparent and stylish.

