Three-story European-style light steel villa in Ji'an, Jiangxi
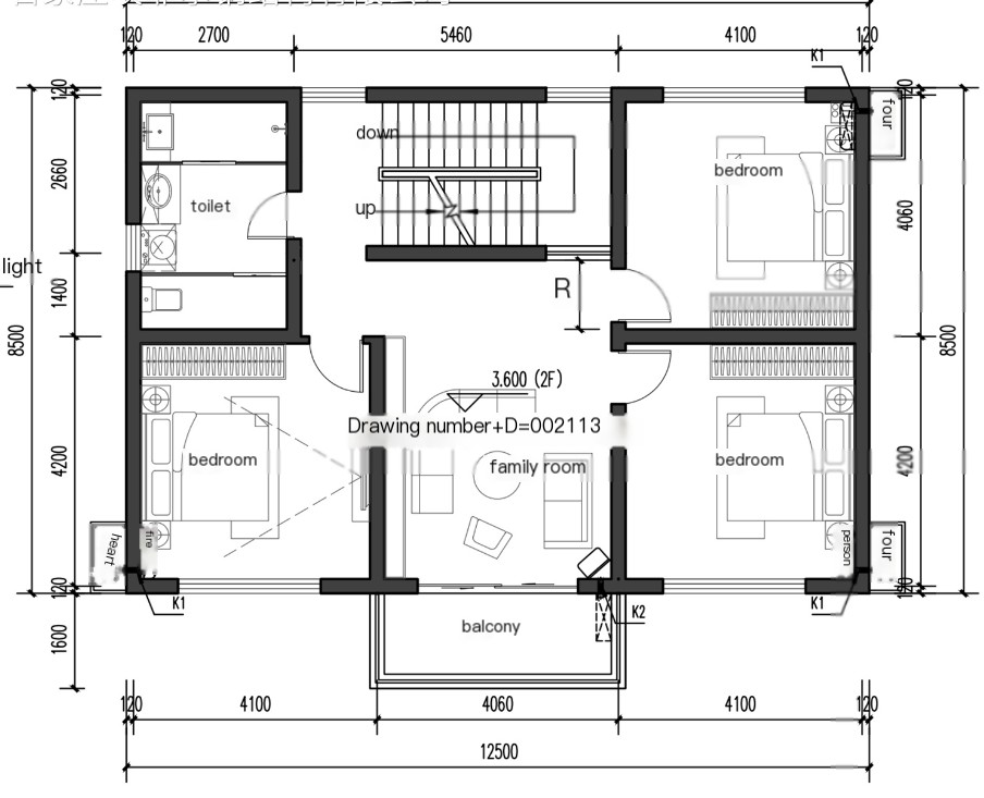
Drawing No. 002113
Building Area: 325.00 m2
Width: 12.50 m
Number of Bays: 3
Number of Floors: 3
Structure: Brick-concrete structure
Construction Cost: 450,000 RMB
Land Area: 106.00 m2
Depth: 8.50 m
Number of Bedrooms: 7
Architectural Style: Popular and elegant, European style, symmetrical
City: Yongfeng County, Ji'an City, Jiangxi Province
Architectural Features: Pitched roof, courtyard, hidden roof, north-facing staircase, 3 bays, 6-7 bedrooms




